Réf : M1789
Sous-offre
Nouveauté

Cernay (68700) CERNAY - IMMEUBLE DE RAPPORT 8 LOGEMENTS + GARAGES

Les infos Essentielles

Caractéristiques Valeurs
Code postal 68700
Surface habitable (m²) 640 m²
Nombre de niveaux 2
Ascenseur NON
Caractéristiques Valeurs
Balcon OUI
Sous/sol AVEC
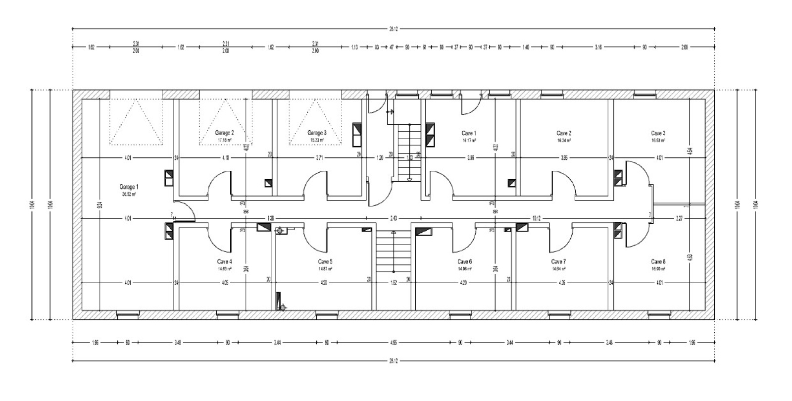
Nombre de garage 8
Cave OUI
Caractéristiques Valeurs
Année de construction 1955
Copropriété NON

CERNAY, situation idéale proche des principaux axes autoroutiers, nous vous proposons à la vente cette immeuble de rapport comprenant 8 logements, d’une surface totale d’environ 640 m², sur une parcelle de 21 ares.

Cet ensemble immobilier constitue une opportunité d’investissement pérenne, offrant stabilité locative et un beau potentiel d’évolution.

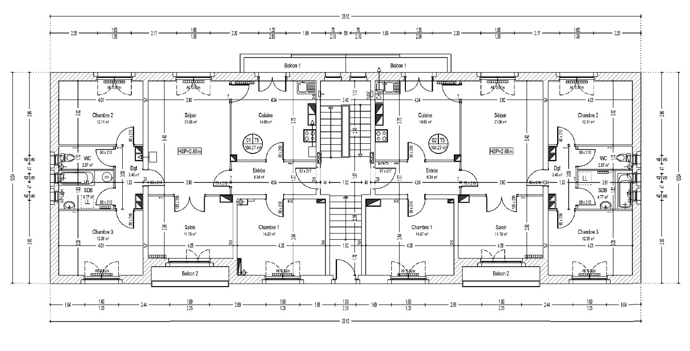
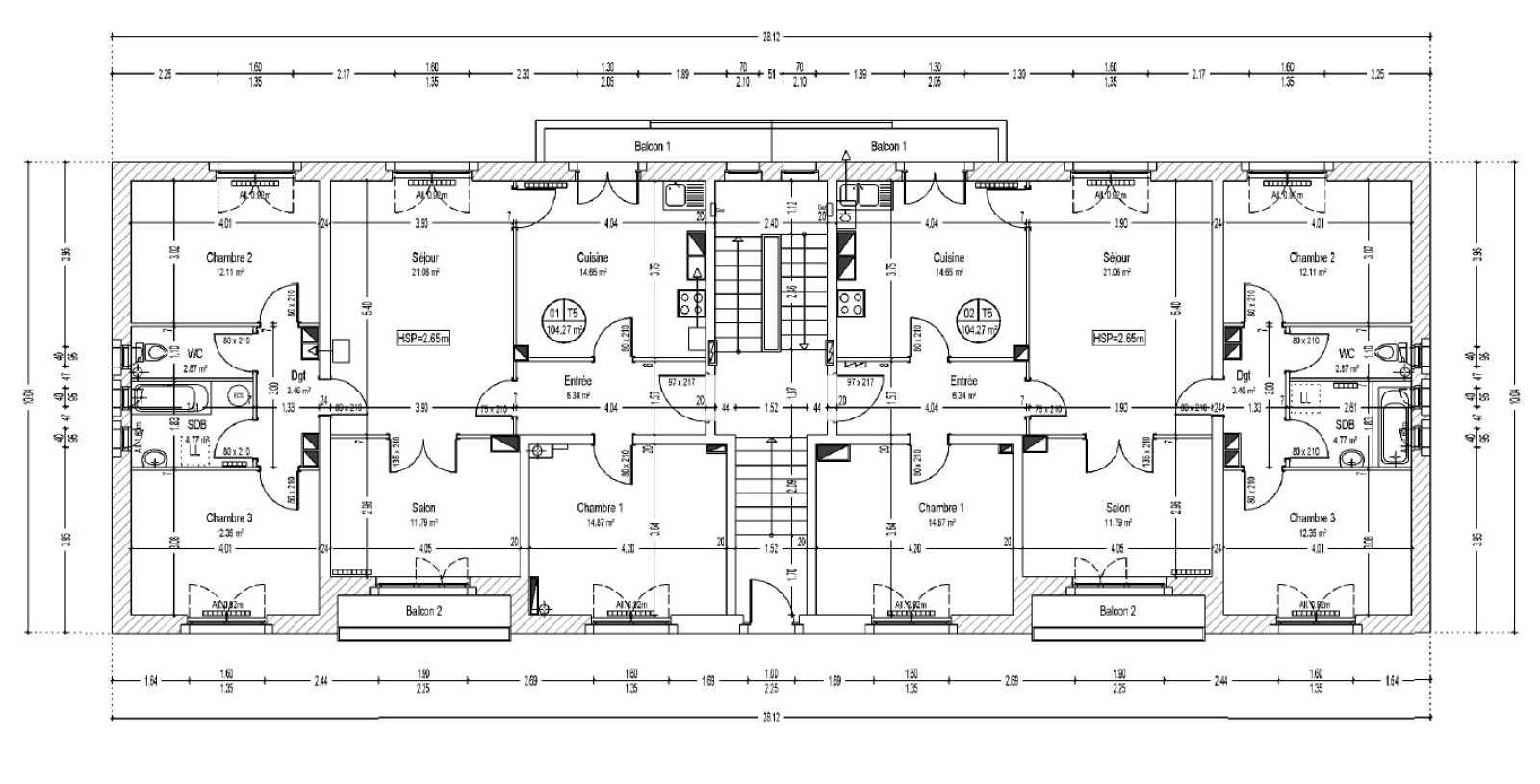
L’immeuble se compose comme suit : au rez de chaussée, deux appartements type 5 pièces d’une surface de 105 m² habitable comprenant une entrée, un salon salle à manger, une cuisine, un wc séparé avec fenêtre, une salle de bains avec fenêtre, deux chambres, une pièce bureau ou 3e chambre, un balcon ainsi qu’une loggia.

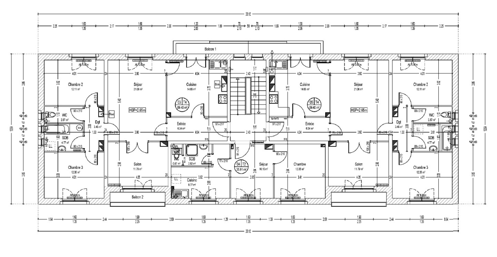
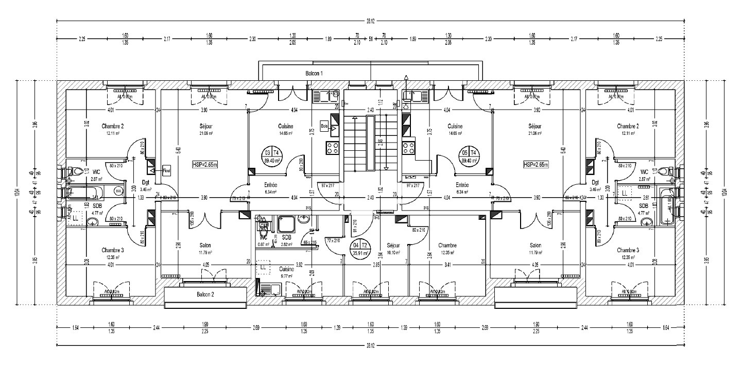
1er étage : Deux appartement type 4 pièces d’une surface de 89.5 m² habitable comprenant une entrée, une cuisine, un salon salle à manger, une salle de bains avec fenêtre, un wc avec fenêtre, deux chambres, un balcon ainsi qu’une loggia.

Un appartement type T2 d’une surface de 36 m² habitable comprenant une entrée, une pièce de vie, une cuisine, une salle d’eau avec wc, une chambre.

2e étage : configuration strictement identique que le 1er étage.

Chaque appartement dispose d’une cave au sous-sol, ainsi que d’un garage fermé type box.

Sous combles, possibilité d’y créer deux appartements de type T3.

Prestations : double vitrage PVC complet, chauffage gaz individuel, dalle béton à chaque niveau, cuisines équipées …

L’ensemble des appartements sont en bon état.

Les locataires sont stables, dont certains sont en place depuis plus de 40 ans. Aucun problème d’impayé, tout est à jour.

Une rénovation complète est à prévoir pour le T5 du rez de chaussée qui vient de se libérer. Budget des travaux estimés à environ 60 à 65.000€ pour une rénovation complète avec cuisine équipée et salle de bains.

Un ravalement de façade pourra être envisagé à moyen terme afin de valoriser davantage l’ensemble.

Montant de la dernière taxe foncière : 4.700€ hors TOM.

Montant total des loyers : 64.525€ par an (loyer estimé du T5 après rénovation avec garage et cave = 915€ par mois hors charges).

Dossier vidéo pour chaque appartement disponible, ainsi que les plans de l’ensemble des biens.

Pour plus de renseignements, merci de bien vouloir nous contacter, un échange téléphonique est à privilégier.

A visiter en exclusivité avec L'Agence DAGON Immobilier.

Famille DAGON, 3 générations à votre service dans l'immobilier, depuis 1964.


Les informations sur les risques auxquels ce bien est exposé sont disponibles sur le site Géorisques

Les infos Financières

Prix de vente 708 000 €
Les honoraires d'agence seront intégralement à la charge du vendeur  
Taxe foncière annuelle 4 700 €

Nos outils

Imprimer

Localisation Du bien

  • Commerces et santé
  • Loisirs
  • Ecoles
  • Transports
  • Pratique

Les infos Energetiques

DPE GES

Montant estimé des dépenses annuelles d'énergie pour un usage standard est compris entre 11 020 € et 14 970 € . Prix moyens des énergies indexés sur les années 2021, 2022 et 2023 (abonnements compris).

Intéressé(e) par Ce bien ?

* Champ obligatoire

Les informations recueillies sur ce formulaire sont enregistrées dans un fichier informatisé par La Boite Immo agissant comme Sous-traitant du traitement pour la gestion de la clientèle/prospects de l'Agence / du Réseau qui reste Responsable du Traitement de vos Données personnelles. La base légale du traitement repose sur l'intérêt légitime de l'Agence / du Réseau. Elles sont conservées jusqu'à demande de suppression et sont destinées à l'Agence / au Réseau. Conformément à la loi « informatique et libertés », vous disposez des droits d’accès, de rectification, d’effacement, d’opposition, de limitation et de portabilité de vos données. Vous pouvez retirer votre consentement à tout moment en contactant directement l’Agence / Le Réseau. Consultez le site https://cnil.fr/fr pour plus d’informations sur vos droits. Si vous estimez, après avoir contacté l'Agence / le Réseau, que vos droits « Informatique et Libertés » ne sont pas respectés, vous pouvez adresser une réclamation à la CNIL. Nous vous informons de l’existence de la liste d'opposition au démarchage téléphonique « Bloctel », sur laquelle vous pouvez vous inscrire ici : https://www.bloctel.gouv.fr Dans le cadre de la protection des Données personnelles, nous vous invitons à ne pas inscrire de Données sensibles dans le champ de saisie libre.
Ce site est protégé par reCAPTCHA, les Politiques de Confidentialité et les Conditions d'Utilisation de Google s'appliquent.
contacter l'agence
Nous suivre sur